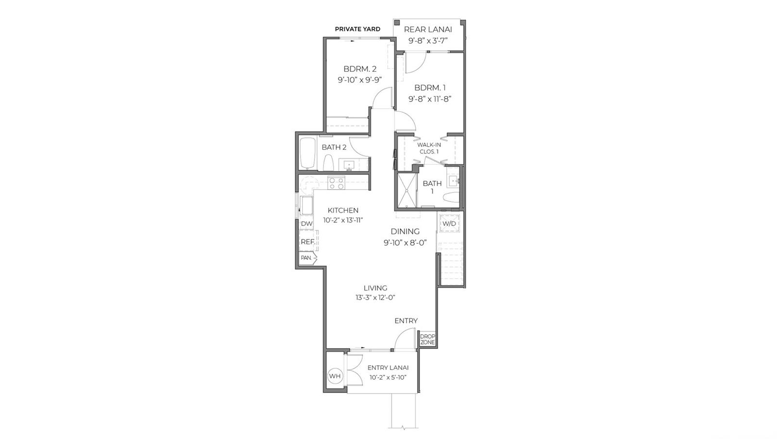
この1階にある2ベッドルーム・2バスルームの角部屋コンドミニアムは、921平方フィートの居住面積を有しています。 屋根付きの玄関ラナイから一歩踏み込むと、オープンコンセプトのリビングとキッチンが広がっています。 キッチンを過ぎると、主寝室があります。ここにはウォークインクローゼット、洗面台、トイレ、ステップインシャワーを備えた専用バスルームがあり、リラックスして新鮮な空気を楽しめる裏側のラナイも付いています。 隣にある2番目の寝室には、鏡張りの引き戸が付いた広々としたクローゼットがあります。 スプリット型エアコンに加え、レンジ・オーブン、レンジフード、食器洗い機、冷蔵庫、洗濯乾燥機などの最新家電が完備されており、快適な暮らしを実現します。 .
「英語原文」
This single ground level 2 bedroom, 2 bath end unit condominium flat consists of 921 square feet of net living area. Step in from the covered entry lanai and enter the open concept living room and kitchen. Past the kitchen is the primary bedroom that includes a walk-in closet, ensuite bathroom with a vanity sink, water closet, step-in shower, and a rear lanai for relaxing and taking in the fresh air. Next door, the secondary bedroom includes a generously sized closet with mirrored sliding doors. Split air conditioning and modern appliances including a range/oven, micro-hood, dishwasher, refrigerator, and washer/dryer allow for ease of living.





















8.5ミリオン以上、8,500スクエアフィート以上、15ベッドルーム以上のお部屋は検索の対象外となります。ご希望のお客様はこちらよりお問い合わせください。オアフ島の全ての売り物件の検索が可能です。
問い合わせ
お探しの物件に似た物件
プロムナード コンド/タウンハウス 1ベッドルーム $89,000 MLS:202506...
新価格!ホリデー特別プラン!ワイキキの中心部にある、静かで落ち着いた隠れ家のような物件!世界的に有名なクヒオ・ビーチまで徒歩圏内。 1ベッドルーム/1バスルー ...
新価格!ホリデー特別プラン!ワイキキの中心部にある、静かで落ち着いた隠れ家のような物件!世界的に有名なクヒオ・ビーチまで徒歩圏内。 1ベッドルーム/1バスルーム/駐車場1台分付き、1階のユニット。専用中庭とラ ...
トレードウィンズ ホテル Inc コンド/タウンハウス 1ベッドルーム $98,000 ...
トレードウィンズ・ホテルの3階にある、静かで手入れの行き届いた1ベッドルームの分譲マンションです。 ショッピングや飲食店、生活に必要な施設が近くにあります。 管理費には電気代が ...
トレードウィンズ・ホテルの3階にある、静かで手入れの行き届いた1ベッドルームの分譲マンションです。 ショッピングや飲食店、生活に必要な施設が近くにあります。 管理費には電気代が含まれています。 投資家にも、自住用としても適し ...
ホリデービレッジ コンド/タウンハウス $235,000 MLS:202602104
ホリデー・ヴィレッジ・コンドミニアムにある、広々として美しく改装されたワンルーム物件。初めての住宅購入者や目利きの投資家の方に最適です。 この居心地の良い住居は、高級ビニール床材 ...
ホリデー・ヴィレッジ・コンドミニアムにある、広々として美しく改装されたワンルーム物件。初めての住宅購入者や目利きの投資家の方に最適です。 この居心地の良い住居は、高級ビニール床材とセラミックタイルを組み合わせることで、モダンであ ...

English