この2階建ての戸建て住宅は、寝室2室、バスルーム2室を備え、居住面積は880平方フィートで、裏庭は完全にフェンスで囲まれたプライベートな空間となっています。 この家に入ると、まずリビングルームが目に飛び込んできます。リビングはキッチンへとシームレスにつながっており、キッチンにはバーカウンター風の座席エリア、ステンレス製の家電、そしてソフトクローズ機能付きの白いキャビネットが備わっています。 1階には、シャワーとバスタブが一体となったフルバスルームのほか、ホームオフィスやラウンジ、ゲームルームなどに最適な多目的スペースも備わっており、その活用方法は無限大です。 2階には、セカンドベッドルームと、ウォークインクローゼット、洗面台とウォークインシャワー付きの専用バスルームを備えたマスターベッドルームがあります。 全館空調システムに加え、レンジ・オーブン、レンジフード、食器洗い機、冷蔵庫、洗濯乾燥機などの最新家電が完備されており、快適な暮らしを実現しています。 本物件は、HRS 514B-96に基づき、当初は自己居住者向けに販売されます。 居住者本人による宣誓供述書が必要となります。これはホオピリ・ポハク・エステーツ販売センターで入手可能です。 .
「英語原文」
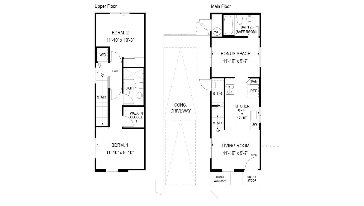
This two story 2-bedroom 2-bathroom detached single family home consists of 880 square feet of net living area and a fully fenced private back yard area. When you step into this home, you will be greeted by the living room that leads seamlessly into the kitchen featuring a bar height seating area, stainless steel appliances, and white soft-close cabinets. The first floor also features a full bathroom with a shower-tub combination and a bonus space that’s perfect for a home office, lounge room, or game room—the possibilities are endless. The second level features the secondary bedroom and primary bedroom with a walk-in closet and ensuite bathroom with a vanity sink and walk-in shower. Whole house split air conditioning and modern appliances including a range/oven, micro-hood, dishwasher, refrigerator, and washer/dryer allow for ease of living. This unit is being initially offered for sale to owner-occupants pursuant to HRS 514B-96. Owner-occupant affidavits are required and are available at the Ho‘opili Pohaku Estates Sales Center.

























8.5ミリオン以上、8,500スクエアフィート以上、15ベッドルーム以上のお部屋は検索の対象外となります。ご希望のお客様はこちらよりお問い合わせください。オアフ島の全ての売り物件の検索が可能です。
問い合わせ
お探しの物件に似た物件
戸建て 3ベッドルーム $915,000 MLS:202600163
ハワイ州エワビーチのホオピリにある、あなたの夢のマイホームへようこそ!この素晴らしい3ベッドルーム、2. バスルームが5つある一戸建て住宅で、スプリットエアコン、 ソリッドサーフェ ...
ハワイ州エワビーチのホオピリにある、あなたの夢のマイホームへようこそ!この素晴らしい3ベッドルーム、2. バスルームが5つある一戸建て住宅で、スプリットエアコン、 ソリッドサーフェス製のカウンター、ステンレス製の家電、ビニールプラ ...
戸建て 3ベッドルーム $989,999 MLS:202604887
ホオピリの総合開発地区に位置する、人気の高い平屋建ての3ベッドルーム・2バスルームの住宅です。 手入れの行き届いたこの住宅は、オープンコンセプトのレイアウトを採用しており、メイン ...
ホオピリの総合開発地区に位置する、人気の高い平屋建ての3ベッドルーム・2バスルームの住宅です。 手入れの行き届いたこの住宅は、オープンコンセプトのレイアウトを採用しており、メインのリビングエリアには高級ビニールプランクフローリン ...
戸建て 4ベッドルーム $997,000 MLS:202522170
3世代にわたり愛されてきたこのパロロの家は、新たな歴史を刻む準備が整っています。 丁寧に手入れが行き届き、可能性に満ちたこの物件は、ご自身の個性を反映させたモダンな空間を、ご自身 ...
3世代にわたり愛されてきたこのパロロの家は、新たな歴史を刻む準備が整っています。 丁寧に手入れが行き届き、可能性に満ちたこの物件は、ご自身の個性を反映させたモダンな空間を、ご自身の感性で作り上げる絶好の機会です。 この住宅には ...

English