この2階建ての3ベッドルーム・2バスルームの独立型一戸建て住宅は、997平方フィートの純居住面積と完全に囲まれたプライベートな裏庭エリアで構成されています。 この家に入ると、ステンレス製の家電と白いソフトクローズキャビネットを備えたキッチンがお出迎えします。 キッチンはリビングルームへとシームレスに流れ込み、ゲストをもてなすのに最適であり、忙しい一日の後にくつろぐのにもぴったりです。 この階には主寝室もあり、ウォークインシャワーと洗面化粧台が備わっています。 2階にはボーナスルームがあり、ホームオフィスやゲームルーム、遊び場として最適です。 この階にはさらに、2つのセカンダリベッドルームと、シャワーと浴槽が一体となったバスルームがあり、住まいの完成度を高めています。 全館分割型エアコンと、レンジ/オーブン、マイクロフード、食器洗い機、冷蔵庫、洗濯機/乾燥機を含むモダンな家電が、快適な暮らしを実現します。 .
「英語原文」
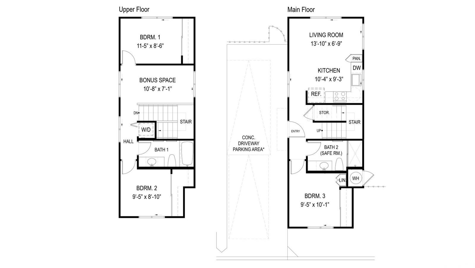
This two story 3-bedroom 2-bathroom detached single family home consists of 997 square feet of net living area and a fully fenced private back yard area. When you step into this home, you will be greeted by the kitchen featuring stainless steel appliances and white soft-close cabinets. The kitchen flows seamlessly into the living room, perfect for entertaining guests or relaxing after a busy day. Also on this floor is a primary bedroom with a walk-in shower and vanity. Upstairs, you will find a bonus room, perfect for a home office, game room, or play area. Also on this floor are two secondary bedrooms and a bathroom with a shower-tub combination to help complete the home. Whole house split air conditioning and modern appliances including a range/oven, micro-hood, dishwasher, refrigerator, and washer/dryer allow for ease of living.
























8.5ミリオン以上、8,500スクエアフィート以上、15ベッドルーム以上のお部屋は検索の対象外となります。ご希望のお客様はこちらよりお問い合わせください。オアフ島の全ての売り物件の検索が可能です。
問い合わせ
お探しの物件に似た物件
ホリデービレッジ コンド/タウンハウス $239,000 MLS:202600035
ウォルマート、ドン・キホーテ日本スーパーマーケット、アラモアナショッピングセンターに近い高層階のスタジオ。 2019年に改装。 ガスコンロ、オーブン、ラミネートフローリング、ラ ...
ウォルマート、ドン・キホーテ日本スーパーマーケット、アラモアナショッピングセンターに近い高層階のスタジオ。 2019年に改装。 ガスコンロ、オーブン、ラミネートフローリング、ラナイ、窓用エアコン、敷地内プール、共用洗濯室、常駐 ...
パシフィックグランド コンド/タウンハウス $239,000 MLS:202603878
パシフィック・グランド・コンドミニアム内、入居可能で好立地のスタジオタイプ。フルバスルーム1室付き。 この改装済みユニットには、新しいキッチンキャビネットとクォーツ製カウンタート ...
パシフィック・グランド・コンドミニアム内、入居可能で好立地のスタジオタイプ。フルバスルーム1室付き。 この改装済みユニットには、新しいキッチンキャビネットとクォーツ製カウンタートップ、室内全体の新塗装、そして新しい高級ビニール板 ...
マカハヴァリープランテーション コンド/タウンハウス 2ベッドルーム $240,000 ...
「意欲的な売り主」マカハ・プランテーションを発見してください –静かな島暮らしが待っています。 喧騒から離れ、静かで風光明媚な環境の中に佇むゲート付きコミュニティ、マカハ・プラン ...
「意欲的な売り主」マカハ・プランテーションを発見してください –静かな島暮らしが待っています。 喧騒から離れ、静かで風光明媚な環境の中に佇むゲート付きコミュニティ、マカハ・プランテーションの安らぎを体験してください。 この魅力 ...

English