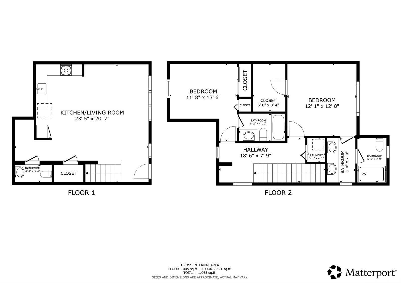
2021年に建設された、ホオピリのコヒナ地区にあるこの手入れの行き届いた角地のタウンハウスは、モダンで機能的な間取りが特徴です。2階には専用バスルーム付きのベッドルームが2室あり、1階には来客用に便利なトイレが備わっています。 主寝室にはウォークインクローゼットが備わっており、2階のランドリーエリアには洗濯機と乾燥機が設置されており、さらに便利になっています。 内装仕上げには、階段から上階にかけてのカーペットと、下階のラグジュアリー・ビニール・プランク床材が採用されています。 この住宅には、リビングエリアと各寝室に分割型エアコンが設置されており、一年中快適に過ごせます。 キッチンにはワールプールの家電製品とレンジフードが備え付けられており、スタイリッシュさと機能性を兼ね備えています。 その他の特長としては、幹線道路からのアクセスが良好なこと、1台収容可能なガレージ、裏口付近にある屋根のない駐車スペース1台分、そして来客用駐車スペースが利用可能であることが挙げられます。 この管理組合では、ごみ収集サービスや共用部分の維持管理をカバーしており、さらなる利便性を提供しています。 ウェスト・オアフのビーチ、ゴルフコース、ショッピングセンター、レストラン、クイーンズ・メディカル・センター・ウェスト、そしてカポレイのコストコまで車ですぐという絶好のロケーションに位置するこの物件は、快適さ、実用性、そして立地条件が見事に調和しています。 .
「英語原文」
This well-cared-for end-unit townhome in Kohina at Ho‘opili, built in 2021, features a modern and functional layout with two en-suite bedrooms upstairs and a convenient half bath on the main level for guests. The main bedroom features a walk-in closet, and the upstairs laundry area includes a washer and dryer for added ease. Interior finishes include carpet from the stairs through the upper level and luxury vinyl plank flooring downstairs. The home is equipped with split AC units in the living area and each bedroom to ensure year-round comfort. The kitchen is outfitted with Whirlpool appliances and a microwave hood, adding both style and functionality. Additional highlights include easy access from the main road, a one-car garage, and one uncovered parking stall located by the back door, along with available guest parking. The HOA covers refuse service and maintenance of common areas, providing added convenience. Ideally situated just a short drive from West Oahu beaches, golf courses, shopping centers, restaurants, Queens Medical Center – West, and Kapolei’s Costco, this property offers a great blend of comfort, practicality, and location.

























8.5ミリオン以上、8,500スクエアフィート以上、15ベッドルーム以上のお部屋は検索の対象外となります。ご希望のお客様はこちらよりお問い合わせください。オアフ島の全ての売り物件の検索が可能です。
問い合わせ
お探しの物件に似た物件
テラッサ コンド/タウンハウス 1ベッドルーム $320,000 MLS:2026068...
全面改装済み、好立地、そして屋根付き駐車場も完備——まさに理想的な物件です。 街の中心部に位置する、美しく改装されたこの1ベッドルームの逸品物件。その見事な改装の成果をぜひご体感 ...
全面改装済み、好立地、そして屋根付き駐車場も完備——まさに理想的な物件です。 街の中心部に位置する、美しく改装されたこの1ベッドルームの逸品物件。その見事な改装の成果をぜひご体感ください。 キッチンには、クォーツ製のカウンター ...
ビラ オン イートンスクエア コンド/タウンハウス 1ベッドルーム $375,000 M...
お買い得価格!ヴィラ・オン・イートン・スクエアのユニットを手に入れる絶好のチャンスをお見逃しなく!この人気コンドミニアムは、ワイキキの息をのむようなパノラマビューを望む屋上パビリオ ...
お買い得価格!ヴィラ・オン・イートン・スクエアのユニットを手に入れる絶好のチャンスをお見逃しなく!この人気コンドミニアムは、ワイキキの息をのむようなパノラマビューを望む屋上パビリオンと、比類なき利便性で知られています。 この1ベ ...
ケクイラニ ヴィラズ コンド/タウンハウス 2ベッドルーム $525,000 MLS:2...
ゴルフコースに面した、すぐに住める平屋の一戸建てへようこそ!利便性と静けさが絶妙に調和した、スタイリッシュで改装済みのこの住まいを、きっと気に入っていただけるはずです。 一歩足を ...
ゴルフコースに面した、すぐに住める平屋の一戸建てへようこそ!利便性と静けさが絶妙に調和した、スタイリッシュで改装済みのこの住まいを、きっと気に入っていただけるはずです。 一歩足を踏み入れた瞬間から、高い天井、開放的な間取り、そし ...

English