ワイキキのパームス・ビルにある、ベッドルーム2室、バスルーム2室のユニット。 この間取りは、寝室とバスルームが別々に配置され、それぞれに独立した入り口があるため、プライバシーを確保できるほか、用途に応じて柔軟に活用できます。 生活空間が明確に区切られ、各部屋の広さが適切に配分された機能的な間取り。 ワイキキの便利なロケーションで、ショッピングや飲食店、生活に必要な施設が近くにあります。 ペット同伴可、VA認定!
「英語原文」
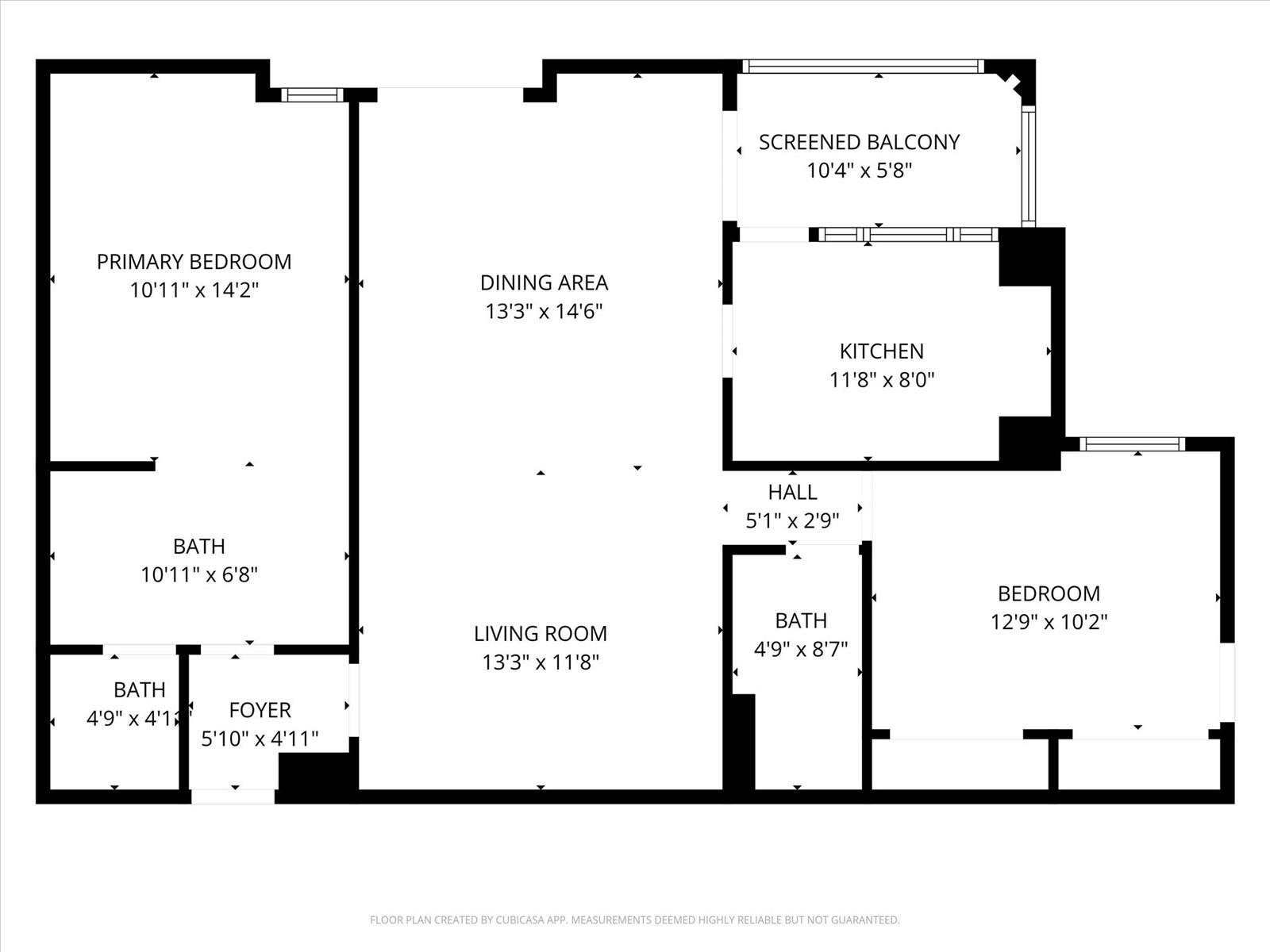
2-bedroom, 2-bath unit in the Palms building, Waikiki. The layout offers flexibility with one bedroom and bathroom positioned separately with it’s own independent entrance, allowing for added privacy or alternative use. Functional floor plan with defined living areas and well-proportioned rooms. Convenient Waikiki location close to shopping, dining, and everyday amenities. Pet friendly and VA approved!

















8.5ミリオン以上、8,500スクエアフィート以上、15ベッドルーム以上のお部屋は検索の対象外となります。ご希望のお客様はこちらよりお問い合わせください。オアフ島の全ての売り物件の検索が可能です。
問い合わせ
お探しの物件に似た物件
戸建て 3ベッドルーム $400,000 MLS:202608951
マイリの中心部で、あなただけの「アイランド・キャンバス」が待っています。 オアフ島の息をのむような美しさを誇るリーワード・コーストで、素晴らしい物件をご紹介します!3ベッドルーム ...
マイリの中心部で、あなただけの「アイランド・キャンバス」が待っています。 オアフ島の息をのむような美しさを誇るリーワード・コーストで、素晴らしい物件をご紹介します!3ベッドルーム、1バスルームのこの住宅が現在販売中です。夢のハワ ...
戸建て 4ベッドルーム $450,000 MLS:202608979
街に絶好のチャンスが!静かな行き止まりの道の突き当たりに位置しています。 ホノルルの交通至便な立地にあるこの物件は、プライバシーが確保されており、将来性にも期待が持てます。 こ ...
街に絶好のチャンスが!静かな行き止まりの道の突き当たりに位置しています。 ホノルルの交通至便な立地にあるこの物件は、プライバシーが確保されており、将来性にも期待が持てます。 この一戸建て住宅は全面改修が必要な物件であり、投資家 ...
ワイラナ アット シーカントリー 戸建て 3ベッドルーム $799,000 MLS:20...
閲覧数またはアップグレード。 場所。 こいつは連絡を受けていなかったようだ。 管理費には、前庭の造園、下水道、水道、およびゴミ収集費が含まれます。 ワイラナ・アット・シー・ ...
閲覧数またはアップグレード。 場所。 こいつは連絡を受けていなかったようだ。 管理費には、前庭の造園、下水道、水道、およびゴミ収集費が含まれます。 ワイラナ・アット・シー・カントリーの角地に位置する、改装済みのマイリ地区の ...

English