click to enable zoom
Loading Maps
物件が見つかりませんでした
マップを広げる
ビュー ロードマップ 衛星マップ ロードマップ+衛星マップ 地形 自分の位置 フルスクリーン 前へ 次へ
ストリートビュー
売買物件検索

$ 0 to $ 8,500,000

We found 0 results. Do you want to load the results now ?
売買物件検索

$ 0 to $ 8,500,000

we found 0 results
Your search results

戸建て 3ベッドルーム $751,430 MLS:202603475

$ 751,430
戸建て in 契約中
91-3525 Kamalie Mua Street
お気に入りに追加
38
契約中

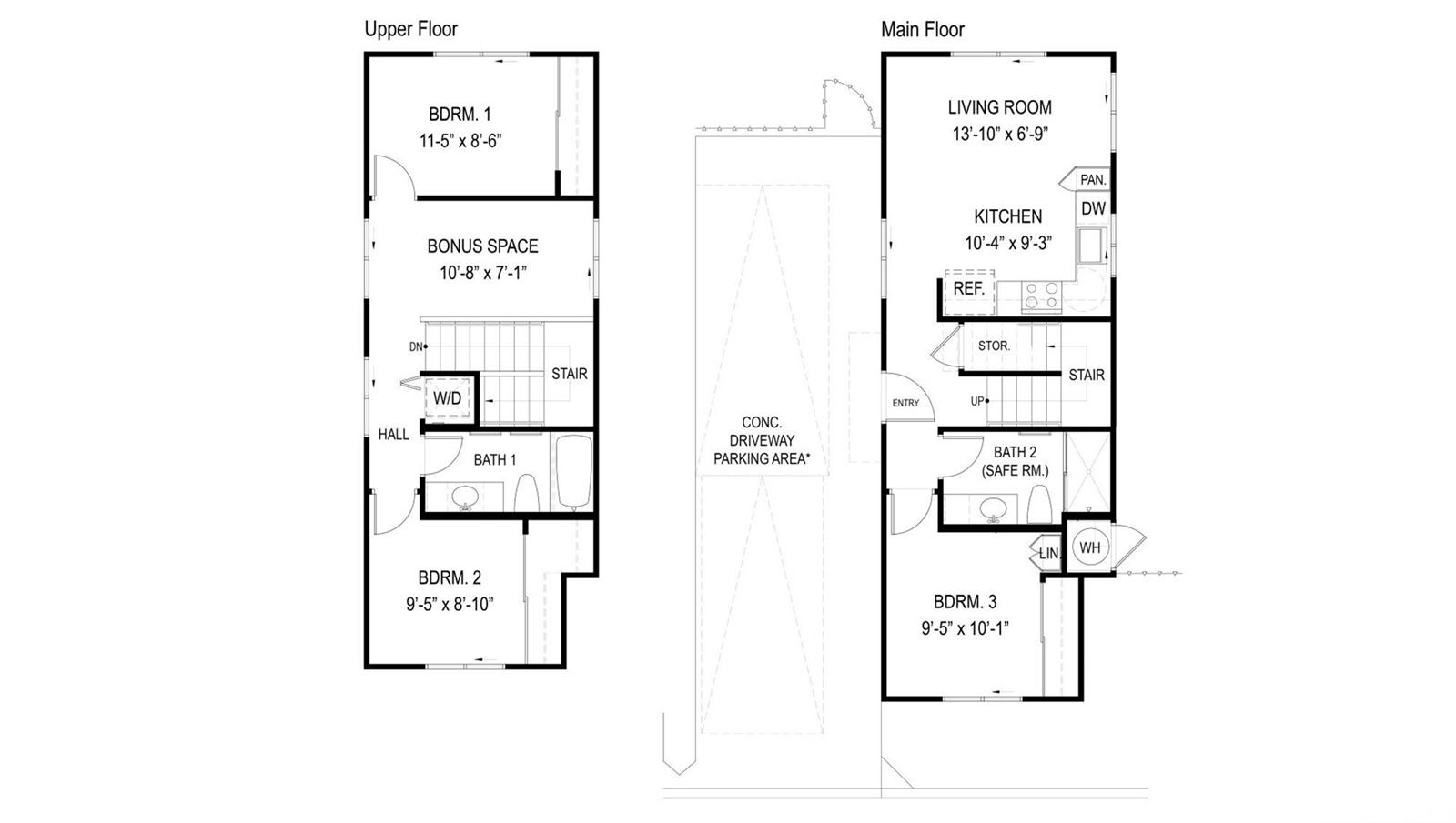
この2階建ての戸建て住宅は、寝室3室、バスルーム2室を備え、居住面積は997平方フィートで、裏庭は完全にフェンスで囲まれたプライベートな空間となっています。 この家に入ると、ステンレス製の家電と白いソフトクローズ機能付きキャビネットを備えたキッチンが迎えてくれます。 キッチンはリビングへとシームレスにつながっており、ゲストをもてなすにも、忙しい一日の後にくつろぐのにも最適です。 この階には、ウォークインシャワーと洗面台を備えた主寝室もあります。 2階には、ホームオフィスやゲームルーム、お子様の遊び場などに最適な多目的ルームがあります。 この階には、さらに2つの寝室と、シャワーとバスタブが一体となったバスルームがあり、住まいの充実感を高めています。 全館空調システムに加え、レンジ・オーブン、レンジフード、食器洗い機、冷蔵庫、洗濯乾燥機などの最新家電が完備されており、快適な暮らしを実現します。 完成予定は2026年5月です。 .

「英語原文」

This two story 3-bedroom 2-bathroom detached single family home consists of 997 square feet of net living area and a fully fenced private back yard area. When you step into this home, you will be greeted by the kitchen featuring stainless steel appliances and white soft-close cabinets. The kitchen flows seamlessly into the living room, perfect for entertaining guests or relaxing after a busy day. Also on this floor is a primary bedroom with a walk-in shower and vanity. Upstairs, you will find a bonus room, perfect for a home office, game room, or play area. Also on this floor are two secondary bedrooms and a bathroom with a shower-tub combination to help complete the home. Whole house split air conditioning and modern appliances including a range/oven, micro-hood, dishwasher, refrigerator, and washer/dryer allow for ease of living. Estimated completion date May 2026.

住所: 91-3525 Kamalie Mua Street
郵便番号: 96706
国: アメリカ合衆国
物件ID: 237424
価格: $ 751,430
物件サイズ: 997 ft2
ベッドルーム数: 3
バスルーム数: 2
洗面所(浴槽なし): 0
MLS番号: 202603475
物件タイプ: 戸建て
洗面所数(浴槽なし)]: 0
駐車場数: 2
エリア: エヴァプレイン
市: オアフ島。
ステータス: 契約中
駐車場の特徴: 私設道, Two Car Garage, Two Spaces
建築様式: Detached
建材: 二重壁、木枠。
物件の状態: 上等
部屋の広さ(平方フィート): 0
築年度: 2026
眺望: 無し
フローリング: カーペット、ビニール。
含まれるもの: エアコン(スプリット型)、食器洗い機、生ごみ処理機、乾燥機、住宅保証、芝生用スプリンクラー、レンジフード、コンロ・オーブン、冷蔵庫、太陽熱温水器、洗濯機。
管理費: 68.33

8.5ミリオン以上、8,500スクエアフィート以上、15ベッドルーム以上のお部屋は検索の対象外となります。ご希望のお客様はこちらよりお問い合わせください。オアフ島の全ての売り物件の検索が可能です。

詳細

問い合わせ

物件比較

お探しの物件に似た物件

契約中

マカハヴァリータワーズ コンド/タウンハウス 1ベッドルーム $198,000 MLS:...

11 740 ft2

RARE 3. VAアッサマブルローン(625%)!! ゲート付きコミュニティ「マカハ・バレー・タワーズ」で、リゾートのような暮らしをお楽しみください。 美しいビーチや風光明媚な ...

RARE 3. VAアッサマブルローン(625%)!! ゲート付きコミュニティ「マカハ・バレー・タワーズ」で、リゾートのような暮らしをお楽しみください。 美しいビーチや風光明媚なハイキングコースに囲まれた静かなマカハ地区に位置す ...

$ 198,000
契約中

アイカヒガーデンズ コンド/タウンハウス 3ベッドルーム $825,000 MLS:20...

32 1,611 ft2

アイカヒ・ガーデンズの素晴らしい角部屋が空室になりました!アイカヒ・ガーデンズは、海軍基地、H-3高速道路、セーフウェイ・ショッピングセンター(日本料理店、スターバックス、動物病院 ...

アイカヒ・ガーデンズの素晴らしい角部屋が空室になりました!アイカヒ・ガーデンズは、海軍基地、H-3高速道路、セーフウェイ・ショッピングセンター(日本料理店、スターバックス、動物病院などが入っています)、そしてもちろん世界的に有名な ...

$ 825,000
売出中

マカハヴァリータワーズ コンド/タウンハウス $190,000 MLS:20260901...

1 589 ft2

マカハ・バレー・タワーズ内でも特に人気の高いロケーションです。 このスタジオは、山と海の壮大なパノラマビューを存分に楽しめるほどの高さにありながら、木々の梢の美しさを堪能できる ...

マカハ・バレー・タワーズ内でも特に人気の高いロケーションです。 このスタジオは、山と海の壮大なパノラマビューを存分に楽しめるほどの高さにありながら、木々の梢の美しさを堪能できるほど低い位置にあります。 このユニットは、スペー ...

$ 190,000
  • 売買物件検索

    $ 0 to $ 8,500,000