第1回オープンハウスは、2006年4月26日(日)午後2時から5時まで開催されます。 お帰りなさい。 改装済みの3ベッドルーム、2. エワ・ジェントリーにある高級ゲートコミュニティ「フエラニ」内の、バスルーム5室を備えた住宅。 省エネを重視して設計されたこの住宅には、36枚の自家所有の太陽光パネルが設置されており、電気代を大幅に抑えています。 多目的に使える間取りで、1階には珍しい寝室とフルバスルームが設けられており、2階にはさらに2つの寝室があります。 真新しいステンレス製の家電と高級感のある内装が施されたモダンなオープンキッチンに加え、2台収容可能な専用ガレージと広々とした来客用駐車場も完備されており、快適な暮らしをお楽しみいただけます。 当HOAは、屋根のメンテナンス、外壁塗装、水道・下水道料金、保険料などをカバーし、プライベートプール、スパ、フィットネスセンター、クラブハウスといったリゾートのような設備もご利用いただける、非常に優れた価値をご提供しています。 世界クラスのゴルフコースやカ・マカナ・アリイ・ショッピングセンターまで、わずか数分です。 —.
「英語原文」
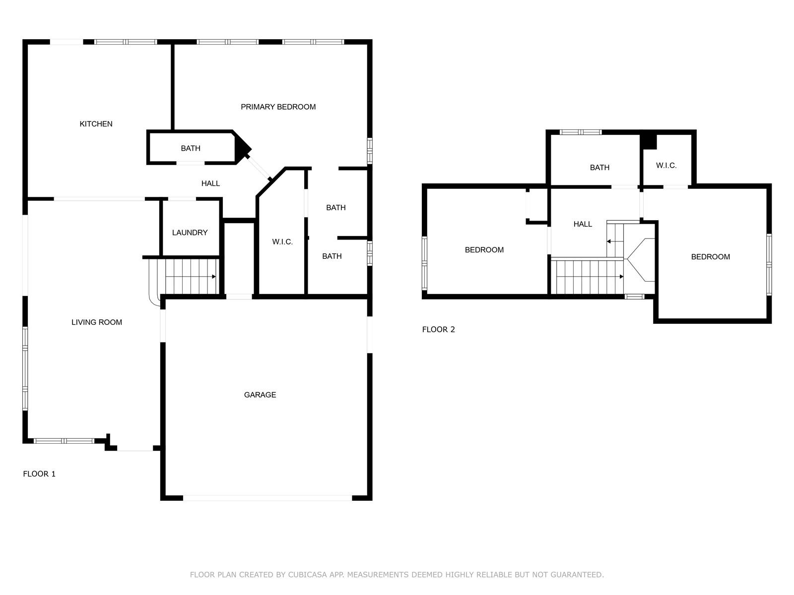
FIRST OPEN HOUSE SUNDAY, APRIL 26, 2006 2:00-5:00PM. Welcome home. Remodeled 3-bedroom, 2.5-bathroom home in the prestigious gated community of Hu’elani at Ewa Gentry. Designed with energy efficiency in mind, the home features 36 owned PV panels that keep electric cost very low. The versatile layout offers a rare first-floor bedroom and full bath, with two additional bedrooms upstairs. Enjoy a modern open-concept kitchen with brand-new stainless steel appliances and premium finishes, plus the convenience of an attached 2-car garage and ample guest parking. The HOA provides exceptional value, covering roof maintenance, exterior painting, water, sewer, and insurance, while giving you access to resort-style amenities including a private pool, spa, fitness center, and clubhouse. Minutes from world-class golf courses and Ka Makana Ali’i shopping center.—





















8.5ミリオン以上、8,500スクエアフィート以上、15ベッドルーム以上のお部屋は検索の対象外となります。ご希望のお客様はこちらよりお問い合わせください。オアフ島の全ての売り物件の検索が可能です。
問い合わせ
お探しの物件に似た物件
マカキロハレ 1 コンド/タウンハウス 3ベッドルーム $575,000 MLS:202...
マカキロでの気楽な島暮らしへようこそ。ここでは、快適さと自由さが調和しています。 この住宅は、上下に隣家がなく、一戸建てのような暮らしが楽しめます。さらに、前庭と裏庭の両方に囲ま ...
マカキロでの気楽な島暮らしへようこそ。ここでは、快適さと自由さが調和しています。 この住宅は、上下に隣家がなく、一戸建てのような暮らしが楽しめます。さらに、前庭と裏庭の両方に囲まれた庭スペースがあり、くつろいだり、ゲストをもてな ...
アカデミー タワーズ コンド/タウンハウス 2ベッドルーム $575,000 MLS:2...
周囲を囲むラナイからは、クーラウ山脈、ホノルルのダウンタウン、ダイヤモンドヘッド、そして海を一望でき、心地よい貿易風をお楽しみいただけます。 キッチンとリビングエリアに面したガラ ...
周囲を囲むラナイからは、クーラウ山脈、ホノルルのダウンタウン、ダイヤモンドヘッド、そして海を一望でき、心地よい貿易風をお楽しみいただけます。 キッチンとリビングエリアに面したガラス引き戸のおかげで、一日中、景色と自然光を楽しむこ ...
パレフアハレ 3 コンド/タウンハウス 3ベッドルーム $579,000 MLS:202...
人気のマカキロに位置するこの魅力的な2階建てコンドミニアムは、一戸建てのような雰囲気と、コンドミニアムならではの利便性を兼ね備えています。 広々とした間取りには3つの寝室があり、 ...
人気のマカキロに位置するこの魅力的な2階建てコンドミニアムは、一戸建てのような雰囲気と、コンドミニアムならではの利便性を兼ね備えています。 広々とした間取りには3つの寝室があり、美しい無垢材のフローリングが家全体に温かみと個性を ...

English