人気のフォスター・ビレッジに位置する、広々とした7ベッドルーム・3バスルームの平屋住宅です!この希少で多目的に活用できる物件は、広々とした間取りが特徴で、多世代同居や、広さと柔軟性を求める大家族に最適です。 広々とした居住空間と機能的な間取りにより、誰もが快適に暮らし、働き、集うことができる空間が確保されています。 以前は介護施設として使用されていましたが、購入者は独自のデューデリジェンスを実施し、将来的に介護施設として使用可能かどうかを確認する必要があります。 外に出て、プライベートプールをお楽しみください。週末のリラックスやゲストのおもてなし、あるいはご自宅で島のような隠れ家を作るのに最適です。 パールハーバー、ヒッカム、主要なショッピングセンター、飲食店、高速道路へのアクセス、そして将来再開発されるアロハ・スタジアムからわずか数分の好立地です。 ホノルルの魅力を存分に楽しめる、中心部という絶好のロケーションをご堪能ください!購入者および購入者代理人は、各自で十分な調査を行うものとします。 .
「英語原文」
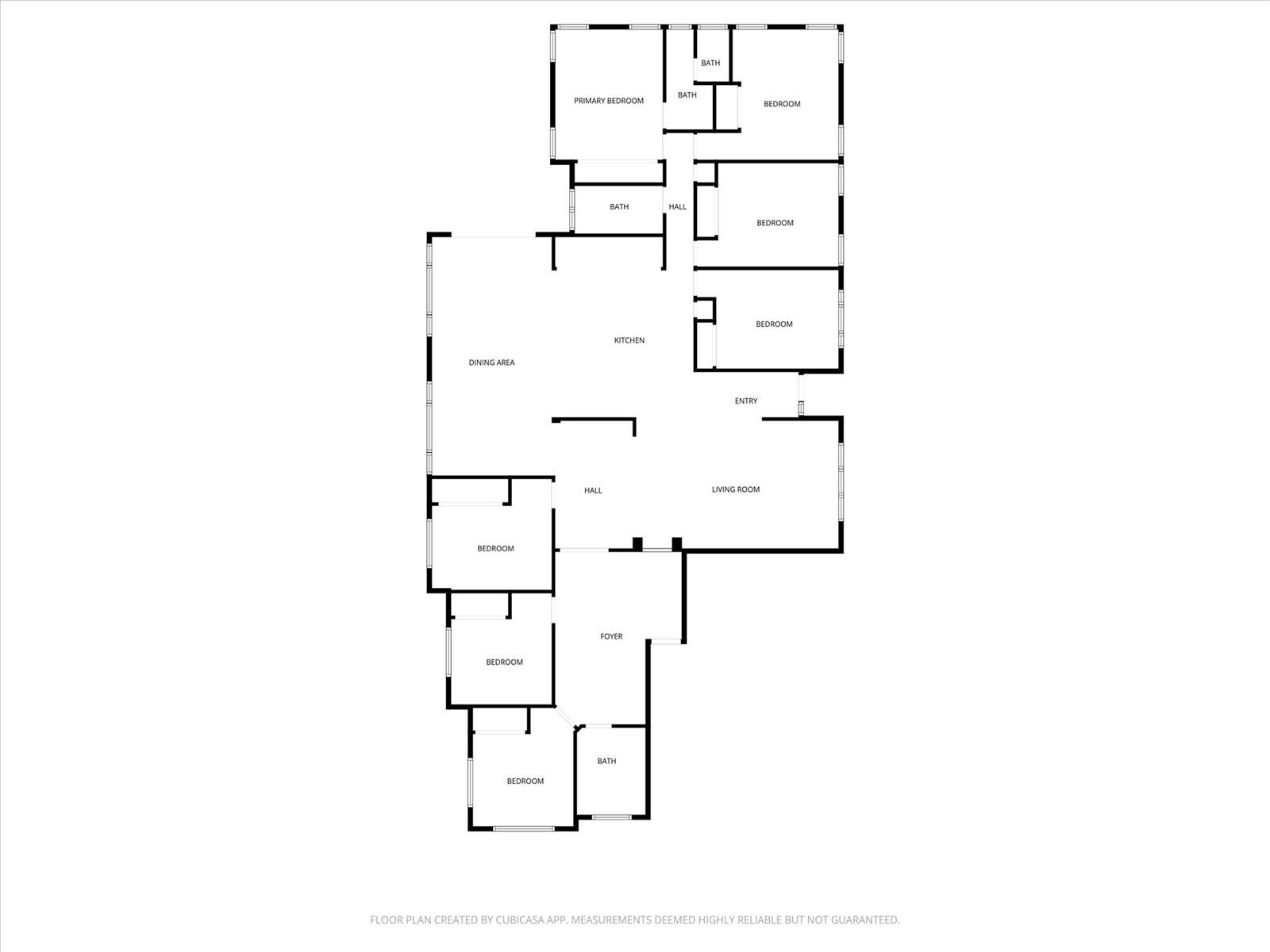
Spacious 7-bedroom, 3-bath single-level home in desirable Foster Village! This rare and versatile property offers an expansive layout ideal for multigenerational living or large families seeking space and flexibility. With generous living areas and a functional floor plan, there’s room for everyone to live, work, and gather comfortably. Previously used as a care home; however, buyer to conduct their own due diligence and verify any future use as a care home.Step outside to enjoy your private pool – perfect for relaxing weekends, entertaining guests, or creating your own island-style retreat at home. Conveniently located just minutes from Pearl Harbor, Hickam, major shopping centers, dining, freeway access, and the future Aloha Stadium redevelopment. Enjoy the benefits of a prime central location with easy access to everything Honolulu has to offer! Buyer and Buyer’s agent to perform their own due diligence.

























8.5ミリオン以上、8,500スクエアフィート以上、15ベッドルーム以上のお部屋は検索の対象外となります。ご希望のお客様はこちらよりお問い合わせください。オアフ島の全ての売り物件の検索が可能です。
問い合わせ
お探しの物件に似た物件
戸建て 3ベッドルーム $350,000 MLS:202604087
ハワイアン・ビーチズの静かな海岸沿いのコミュニティへようこそ。ここでは、島ならではの暮らしと日々の利便性が調和しています。 静かな通りにひっそりと佇む、わずか1. ワイアカヒウラ ...
ハワイアン・ビーチズの静かな海岸沿いのコミュニティへようこそ。ここでは、島ならではの暮らしと日々の利便性が調和しています。 静かな通りにひっそりと佇む、わずか1. ワイアカヒウラ・ビーチ・パークから5マイルの場所に位置する、手入 ...
フォーパドル コンド/タウンハウス $349,000 MLS:202606182
「The Four Paddle」の希少なワンルーム物件です。クォーツ製のカウンタートップとシェーカースタイルのキャビネットを備えたリフォーム済みのキッチン、新しいステンレス製のコ ...
「The Four Paddle」の希少なワンルーム物件です。クォーツ製のカウンタートップとシェーカースタイルのキャビネットを備えたリフォーム済みのキッチン、新しいステンレス製のコンロとレンジフード、滑らかな天井、バスルームには新 ...
ハイクポイント 2 コンド/タウンハウス 2ベッドルーム $600,000 MLS:20...
美しいカネオヘにある、緑豊かで静かなコミュニティ「ハイク・ポイント2」にて、人気の高い2ベッドルーム・1バスルームの住宅を手に入れる絶好の機会です。 好立地に位置するこの物件には ...
美しいカネオヘにある、緑豊かで静かなコミュニティ「ハイク・ポイント2」にて、人気の高い2ベッドルーム・1バスルームの住宅を手に入れる絶好の機会です。 好立地に位置するこの物件には専用駐車場が備わっており、快適さと利便性が絶妙に調 ...

English