この2階建ての戸建て住宅は、寝室2室、バスルーム2室を備え、居住面積は880平方フィートで、裏庭は完全にフェンスで囲まれたプライベートな空間となっています。 この家に入ると、まずリビングが目に飛び込んできます。リビングはキッチンへとシームレスにつながっており、キッチンにはバーカウンター風の座席エリア、ステンレス製の家電、そしてソフトクローズ機能付きの白いキャビネットが備わっています。 1階には、シャワーとバスタブが一体となったフルバスルームのほか、ホームオフィスやラウンジ、ゲームルームなどに最適な多目的スペースも備わっており、その活用方法は無限大です。 2階には、セカンドベッドルームと、ウォークインクローゼット、洗面台とウォークインシャワー付きの専用バスルームを備えたマスターベッドルームがあります。 全館空調システムに加え、レンジ・オーブン、レンジフード、食器洗い機、冷蔵庫、洗濯乾燥機などの最新家電が完備されており、快適な暮らしを実現します。 本物件は、HRS 514B-96に基づき、当初は自己居住者向けに販売されます。 居住者本人による宣誓供述書が必要となります。これはホオピリ・ポハク・エステーツ販売センターで入手可能です。 .
「英語原文」
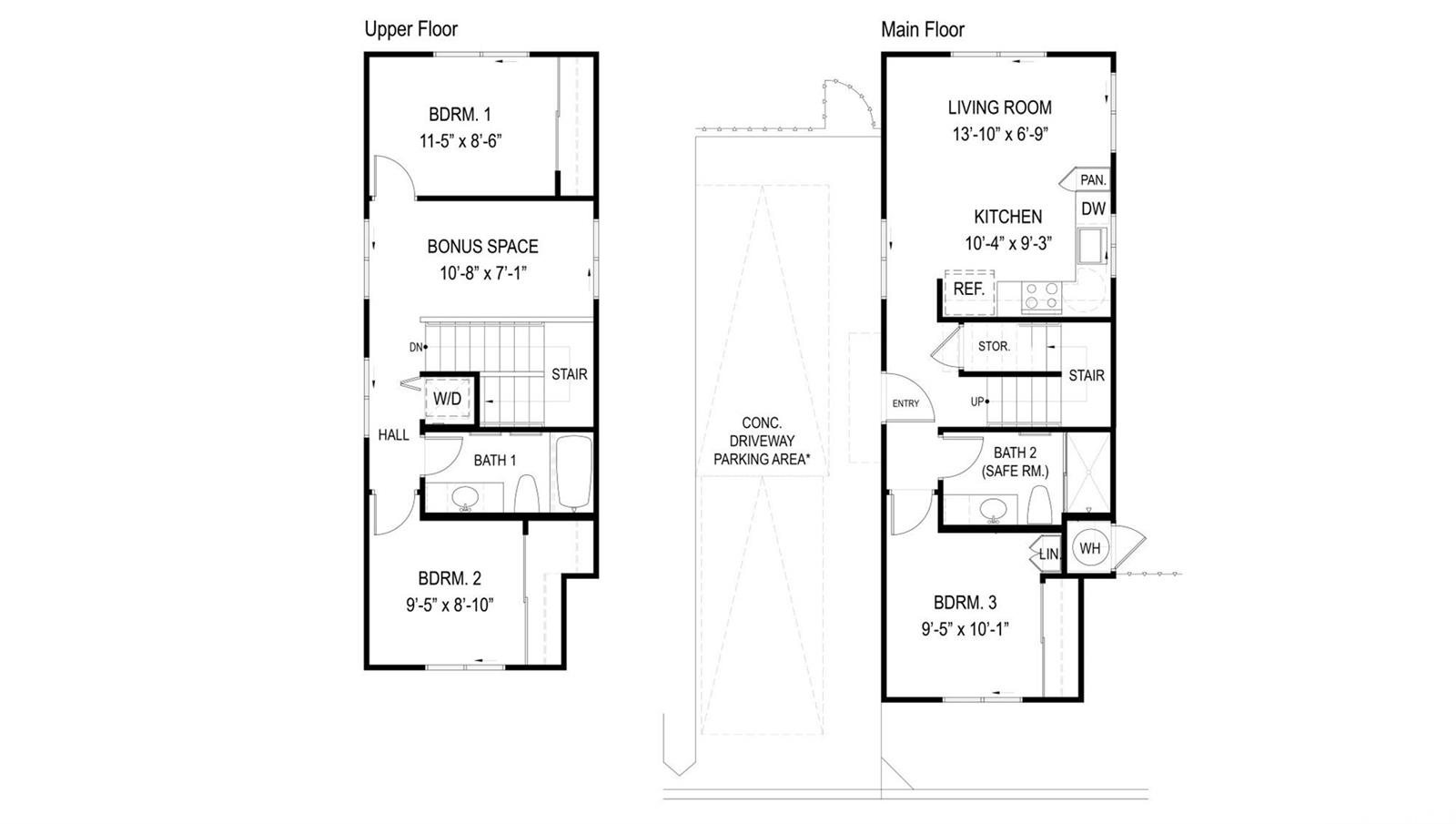
This two story 2-bedroom 2-bathroom detached single family home consists of 880 square feet of net living area and a fully fenced private back yard area. When you step into this home, you will be greeted by the living room that leads seamlessly into the kitchen featuring a bar height seating area, stainless steel appliances, and white soft-close cabinets. The first floor also features a full bathroom with a shower-tub combination and a bonus space that’s perfect for a home office, lounge room, or game room—the possibilities are endless. The second level features the secondary bedroom and primary bedroom with a walk-in closet and ensuite bathroom with a vanity sink and walk-in shower. Whole house split air conditioning and modern appliances including a range/oven, micro-hood, dishwasher, refrigerator, and washer/dryer allow for ease of living. This unit is being initially offered for sale to owner-occupants pursuant to HRS 514B-96. Owner-occupant affidavits are required and are available at the Ho‘opili Pohaku Estates Sales Center.
























8.5ミリオン以上、8,500スクエアフィート以上、15ベッドルーム以上のお部屋は検索の対象外となります。ご希望のお客様はこちらよりお問い合わせください。オアフ島の全ての売り物件の検索が可能です。
問い合わせ
お探しの物件に似た物件
戸建て 5ベッドルーム $1,380,000 MLS:202607708
広々としたモダンな5ベッドルームの一戸建て住宅。室内面積は3,200平方フィート以上、ガレージ付き!独立した入り口を備えた柔軟な間取り:2階に3ベッドルーム、1階に2ベッドルーム、 ...
広々としたモダンな5ベッドルームの一戸建て住宅。室内面積は3,200平方フィート以上、ガレージ付き!独立した入り口を備えた柔軟な間取り:2階に3ベッドルーム、1階に2ベッドルーム、さらにスタジオルームも完備。 洗濯機・乾燥機置き ...
戸建て 3ベッドルーム $1,488,000 MLS:202605575
マカハ・ビーチからわずか4分のゲート付きリゾートコミュニティにある、素晴らしい短期賃貸物件です!マカハ・バレーに佇む「ザ・コテージズ・アット・マウナオル」は、セキュリティゲートをく ...
マカハ・ビーチからわずか4分のゲート付きリゾートコミュニティにある、素晴らしい短期賃貸物件です!マカハ・バレーに佇む「ザ・コテージズ・アット・マウナオル」は、セキュリティゲートをくぐれば、ハワイのトロピカルパラダイスが広がります! ...
戸建て 5ベッドルーム $1,495,000 MLS:202605393
立地、立地、立地!!! カプアイ・プレイスに一戸建て住宅を購入できる、めったにないチャンスです。 人気の高いサンセット/ヴェルジー地区に。 この物件はカメハメハ・ハイウェイのマ ...
立地、立地、立地!!! カプアイ・プレイスに一戸建て住宅を購入できる、めったにないチャンスです。 人気の高いサンセット/ヴェルジー地区に。 この物件はカメハメハ・ハイウェイのマカイ(海側)に位置し、袋小路の突き当たりからビーチ ...

English