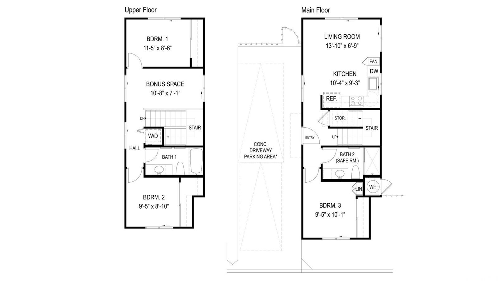
この2階建ての戸建て住宅は、寝室3室、バスルーム2室を備え、居住面積は997平方フィートで、裏庭は完全にフェンスで囲まれたプライベートな空間となっています。 この家に入ると、ステンレス製の家電と白いソフトクローズ機能付きキャビネットを備えたキッチンが迎えてくれます。 キッチンはリビングへとシームレスにつながっており、ゲストをもてなすにも、忙しい一日の後にくつろぐのにも最適です。 この階には、ウォークインシャワーと洗面台を備えた主寝室もあります。 2階には、ホームオフィスやゲームルーム、お子様の遊び場などに最適な多目的ルームがあります。 この階には、さらに2つの寝室と、シャワーとバスタブが一体となったバスルームがあり、住まいの充実感を高めています。 全館空調システムに加え、レンジ・オーブン、レンジフード、食器洗い機、冷蔵庫、洗濯乾燥機などの最新家電が完備されており、快適な暮らしを実現します。 .
「英語原文」
This two story 3-bedroom 2-bathroom detached single family home consists of 997 square feet of net living area and a fully fenced private back yard area. When you step into this home, you will be greeted by the kitchen featuring stainless steel appliances and white soft-close cabinets. The kitchen flows seamlessly into the living room, perfect for entertaining guests or relaxing after a busy day. Also on this floor is a primary bedroom with a walk-in shower and vanity. Upstairs, you will find a bonus room, perfect for a home office, game room, or play area. Also on this floor are two secondary bedrooms and a bathroom with a shower-tub combination to help complete the home. Whole house split air conditioning and modern appliances including a range/oven, micro-hood, dishwasher, refrigerator, and washer/dryer allow for ease of living.
























8.5ミリオン以上、8,500スクエアフィート以上、15ベッドルーム以上のお部屋は検索の対象外となります。ご希望のお客様はこちらよりお問い合わせください。オアフ島の全ての売り物件の検索が可能です。
問い合わせ
お探しの物件に似た物件
トレードウィンズ ホテル Inc コンド/タウンハウス 1ベッドルーム $85,000 ...
お買い得です!広々とした1ベッドルーム・1バスルームのユニットで、開放感のある広いラナイ付き。通風も抜群です。 新品のワールプール製冷蔵庫、洗面化粧台、キッチンシンク、コンロ、そ ...
お買い得です!広々とした1ベッドルーム・1バスルームのユニットで、開放感のある広いラナイ付き。通風も抜群です。 新品のワールプール製冷蔵庫、洗面化粧台、キッチンシンク、コンロ、そして組み込み式のマーフィーベッド。 ワイキキの中 ...
パシフィックグランド コンド/タウンハウス $225,000 MLS:202607576
中心部の好立地にあり、専用ラナイ付きの角部屋スタジオです。 ドン・キホーテ、ウォルマート、サムズ・クラブ、ロス、アラモアナ・ショッピングセンター、ビーチパークの近くに位置し、アク ...
中心部の好立地にあり、専用ラナイ付きの角部屋スタジオです。 ドン・キホーテ、ウォルマート、サムズ・クラブ、ロス、アラモアナ・ショッピングセンター、ビーチパークの近くに位置し、アクセスが便利です。 近隣のバス路線やBikiの自転車 ...
ブロタニア – ペンサコーラ コンド/タウンハウス 2ベッドルーム $245...
ホノルルの中心部に位置する、完全所有権の2ベッドルーム・1バスルームのコンドミニアムは、初めて住宅を購入する方や投資家にとって絶好の機会です。 ダウンタウン、クイーンズ・メディカ ...
ホノルルの中心部に位置する、完全所有権の2ベッドルーム・1バスルームのコンドミニアムは、初めて住宅を購入する方や投資家にとって絶好の機会です。 ダウンタウン、クイーンズ・メディカル・センター、アラモアナ、セーフウェイ、そして複数 ...

English