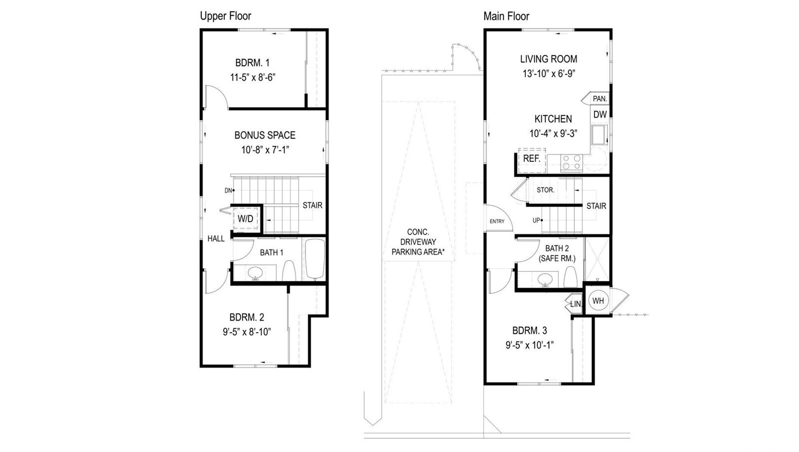
この2階建ての戸建て住宅は、寝室3室、バスルーム2室を備え、居住面積は997平方フィートで、裏庭は完全にフェンスで囲まれたプライベートな空間となっています。 この家に入ると、ステンレス製の家電と白いソフトクローズ機能付きキャビネットを備えたキッチンが迎えてくれます。 キッチンはリビングへとシームレスにつながっており、ゲストをもてなすにも、忙しい一日の後にくつろぐのにも最適です。 この階には、ウォークインシャワーと洗面台を備えた主寝室もあります。 2階には、ホームオフィスやゲームルーム、お子様の遊び場などに最適な多目的ルームがあります。 この階には、さらに2つの寝室と、シャワーとバスタブが一体となったバスルームがあり、住まいの充実感を高めています。 全館空調システムに加え、レンジ・オーブン、レンジフード、食器洗い機、冷蔵庫、洗濯乾燥機などの最新家電が完備されており、快適な暮らしを実現します。 この住宅の完成予定は2026年7月です。 .
「英語原文」
This two story 3-bedroom 2-bathroom detached single family home consists of 997 square feet of net living area and a fully fenced private back yard area. When you step into this home, you will be greeted by the kitchen featuring stainless steel appliances and white soft-close cabinets. The kitchen flows seamlessly into the living room, perfect for entertaining guests or relaxing after a busy day. Also on this floor is a primary bedroom with a walk-in shower and vanity. Upstairs, you will find a bonus room, perfect for a home office, game room, or play area. Also on this floor are two secondary bedrooms and a bathroom with a shower-tub combination to help complete the home. Whole house split air conditioning and modern appliances including a range/oven, micro-hood, dishwasher, refrigerator, and washer/dryer allow for ease of living. Estimated completion of this home is July 2026.
























8.5ミリオン以上、8,500スクエアフィート以上、15ベッドルーム以上のお部屋は検索の対象外となります。ご希望のお客様はこちらよりお問い合わせください。オアフ島の全ての売り物件の検索が可能です。
問い合わせ
お探しの物件に似た物件
戸建て 3ベッドルーム $370,000 MLS:202606317
ハワイ島のアイナロア・サブディビジョン内、舗装された道路沿いに位置するこの手入れの行き届いた住宅は、快適さと利便性を兼ね備えています。 室内には、明るい開放感のあるリビングエリアが ...
ハワイ島のアイナロア・サブディビジョン内、舗装された道路沿いに位置するこの手入れの行き届いた住宅は、快適さと利便性を兼ね備えています。 室内には、明るい開放感のあるリビングエリアがあり、床材は新しく張り替えられ、モダンな照明器具が ...
戸建て 4ベッドルーム $699,000 MLS:202608348
美しく改装されたメインハウス(寝室3室、バスルーム2室)と、広々としたオハナハウス(寝室1室、バスルーム1室)から成る物件です。両住宅の間には、新しく舗装された私道と、天井高12フ ...
美しく改装されたメインハウス(寝室3室、バスルーム2室)と、広々としたオハナハウス(寝室1室、バスルーム1室)から成る物件です。両住宅の間には、新しく舗装された私道と、天井高12フィート(約3.6メートル)の広々としたボートスタイ ...
戸建て 8ベッドルーム $1,900,000 MLS:202608276
2021年に新築された、人気の高いカイムキ地区にある物件です。 柔軟な間取りにより、ご要望に合わせて自由にカスタマイズ可能です。8つの寝室と4つのバスルームを備え、成長するご家族 ...
2021年に新築された、人気の高いカイムキ地区にある物件です。 柔軟な間取りにより、ご要望に合わせて自由にカスタマイズ可能です。8つの寝室と4つのバスルームを備え、成長するご家族にも十分な広さを確保しています。 この物件は、そ ...

English